お問い合わせ
03-3530-7711
レンタル商品
プレハブハウス
トップ
宅配ハウス
ユニットハウス
37型ユニットハウス
54型ユニットハウス
72型ユニットハウス
ミニ型ユニットハウス
ミニ10型
ミニ20型
ミニ28型
備品
デスク / チェアー
テーブル / キャビネット
ロッカー
ホワイトボード
OA機器 / 電話機
応接家具 / パーテション
家電製品 / キッチン
エアコン / 扇風機 / 暖房器具
その他備品
仮設トイレ その他
簡易水洗トイレ GXシリーズ
簡易水洗トイレ Wシリーズ
その他
販売商品
プレハブハウス
富士
エース
トップ
ユニットハウス
ロイヤルハウス
ユニットハウス
施工例
プレハブハウス
トップ
宅配ハウス
富士
エース
ユニットハウス
37型ユニットハウス
54型ユニットハウス
72型ユニットハウス
ミニ型ユニットハウス
ミニ10型
ミニ20型
ミニ28型
ロイヤルハウス
会社案内
大東ハウスについて
会社概要
会社沿革
企業理念
事業所・展示場案内
個人情報保護方針
WEB カタログ
toggle navigation
ホーム
TEL
WEBカタログ
お問い合わせ
レンタル商品
○ プレハブハウス
トップ
宅配ハウス
○ ユニットハウス
37型
54型
72型
ミニ型ユニットハウス
ミニ10型
ミニ20型
ミニ28型
○ 備品
デスク / チェアー
テーブル / キャビネット
ロッカー
ホワイトボード
OA機器 / 電話機
応接家具 / パーテション
家電製品 / キッチン
エアコン / 扇風機 / 暖房機器
その他備品
○ 仮設トイレ その他
簡易水洗トイレ GXシリーズ
簡易水洗トイレ Wシリーズ
その他
販売商品
○ プレハブハウス
富士
エース
トップ
○ ユニットハウス
ロイヤルハウス
ユニットハウス
施工例
○ プレハブハウス
トップ
宅配ハウス
富士
エース
○ ユニットハウス
37型ユニットハウス
54型ユニットハウス
72型ユニットハウス
ミニ型ユニットハウス
ミニ10型
ミニ20型
ミニ28型
ロイヤルハウス
会社案内
○ 大東ハウスについて
社長あいさつ
会社概要
会社沿革
企業理念
事業所・展示場案内
個人情報保護方針
レンタル商品
プレハブハウス
トップ型
(プレハブハウス)
当社独自のユニットエアコンのレンタル
室内機と室外機が一体型で工期短縮
サンドイッチパネルを使用し、断熱効果にすぐれています。
当社独自のユニットエアコンは、室内機と室外機が一体型で、工期の短縮が図れます。
換気扇枠(300㎜)はご希望に応じて、中心・左右に自由自在に取付できます。
施工例
トップ型 4K×10K
トップ型 2K×3K 平屋建
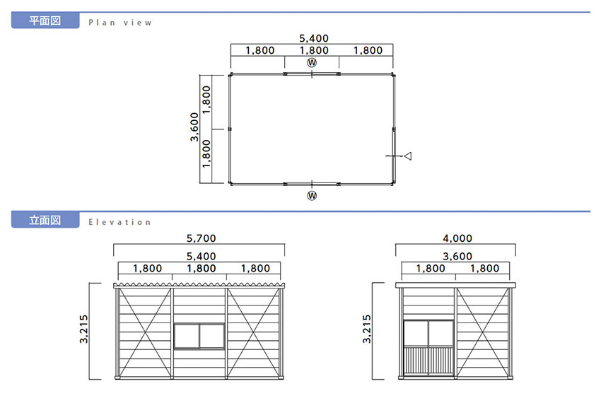
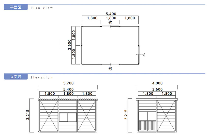
詳細図面
トップ型 3K×4K 2階建
詳細図面
トップ型 4K×8.5K 平屋建
トップ型 4K×15K 平屋建
トップ型 3K×8K 2階建
オプション
間仕切り カラー合板パネル式
倉庫棚(D600・D900)
床 タイルカーペット(上)
ガルバリュウム鋼板(下)
腰パネル付外階段
壁掛エアコン
(100V・200V単相電源)
3相200V床置型
パッケージエアコン
照明器具付天井(宅配型に限る)
規格パネル式ブレーカー・点検穴(宅配型に限る)
換気扇、換気扇枠
庇( 出巾660㎜)
宅配ハウス
(プレハブハウス)
施工が早い!!最短1日で設置
狭い敷地や屋内もOK!
車が入れない場所もOK!
コンパクトなプレハブ!!
車が入れない場所、狭い敷地や屋内でも組立が簡単!
リースから新棟販売まで幅広くご利用頂けます。
什器・備品・事務機器もリースいたします。
宅配ハウスは2階建てには対応しておりません。
ご要望に応じて、天井埋込み式照明器具・コンセント・換気扇はオプション装備できます。
施工例
宅配ハウス 1K×3K
詳細図面
宅配ハウス 1.5K×3K
鋼板製の屋根
(オプションエアコン付)
宅配ハウス 1K×2K 入口引違戸タイプ
宅配ハウス 1.5K×2K 入口片開ドアタイプ
内装例
備品設置イメージ
備品設置イメージ
(A/Cも取付できます)
倉庫棚設置(OP)
リース天井・床仕上
(タイルカーペット・ガルバ鋼板張)